Ter. residenziale in vendita

Sassofeltrio, Via IV Novembre
€ 179.000
Prezzo aggiornato
6 locali 6 locali
200 Mq 200 Mq
2 bagni 2 bagni

Ter. residenziale in vendita

Sassofeltrio, Via IV Novembre

Descrizione annuncio

Zona Sassofeltrio, casa indipendente.

Proponiamo in vendita terreno parzialmente edificato con progetto approvato dal Comune per la costruzione di una villetta indipendente.

Iniziato nel 2022 l'immobile si svilupperà su due livelli, offrendo una superficie complessiva di 200 mq.
La soluzione viene venduta allo stato di fatto: sono già stati costruiti i pali e la platea, garantendo solidità e sicurezza.

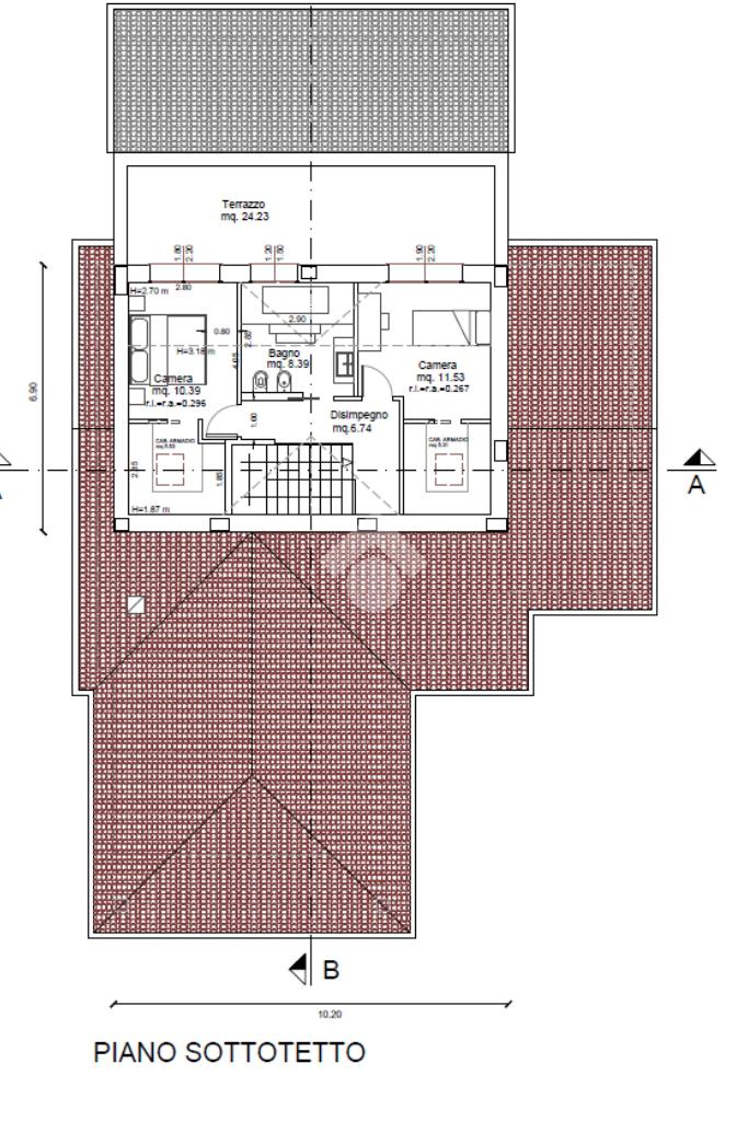
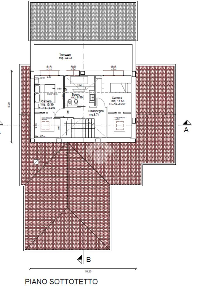
Il progetto prevede:

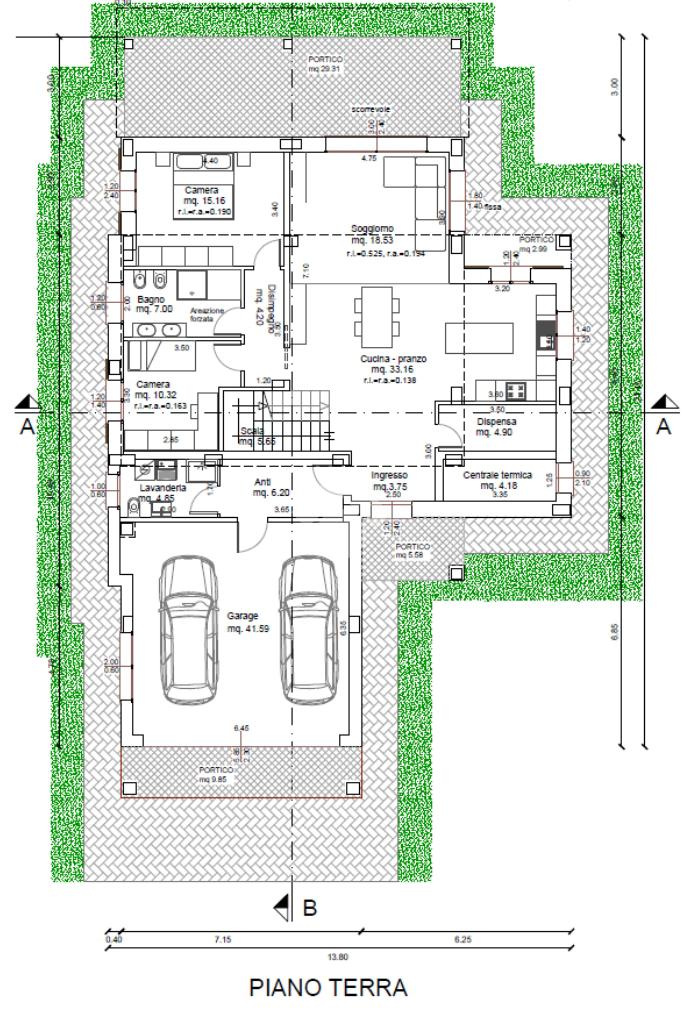
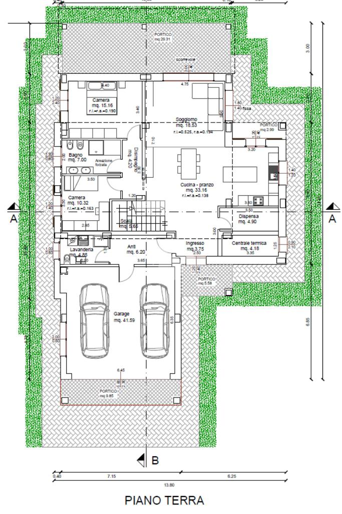
Piano terra: ampio garage doppio, soggiorno luminoso con cucina, due camere da letto e un bagno.

Piano primo: un ulteriore bagno e due camere, entrambe con cabina armadio e con uscita sul terrazzo panoramico.

Completano la proprietà:
- Zona giorno arricchita da un portico, perfetto per momenti di relax all'aperto.
- Un ampio giardino privato, che garantisce privacy e tranquillità.

Questa soluzione abitativa rappresenta un'opportunità per chi cerca una residenza moderna e funzionale, a pochi chilometri dalla Repubblica di San Marino e dalla costa.

Mostra tutto

Nelle vicinanze

Trasporto pubblico Trasporto pubblico
Trasporto pubblico
1,8 Km
Montegiardino
Montegiardino
2,4 Km
Scuole Scuole
Scuola Elementare di Montegiardino " L'Olmo"
2,4 Km
Scuole
2,4 Km
Supermercati Supermercati
Supermercati
2,5 Km
Bar Bar
La Piazzetta
2,4 Km
Bar Roma
2,5 Km
da Cimos
2,6 Km
Ristoranti Ristoranti
Pizzeria Conca D'Oro
2,3 Km
La Locanda
2,6 Km
Mostra tutto

Caratteristiche

Rif.:
61152051
Piano:
Su più livelli di 2
Totale piani:
2
Box:
1
Terrazzi:
1
Camere da letto:
4
Mostra tutto
Prezzo Prezzo
€ 179.000
Rata mutuo Rata mutuo
€ 836 / mese
Spese annue Spese annue
€ 0
Proponi il tuo prezzoProponi il tuo prezzo

Classe Energetica

A1
A1
A1
A1
A1
A1
A1
A1
A1
EP globale non rinnovabile:
77.00 kW h/m² anno
EP globale rinnovabile:
80.00 kW h/m² anno
EP invernale del fabbricato:
EP estiva del fabbricato:
Anno di costruzione:
2022
Riscaldamento:
Autonomo
Tipo impianto:
Ad aria
Tipo alimentazione:
Pannelli

Prezzo ridotto di €1 (6%%)

Ti interessa visionare l'immobile?

Fissa un appuntamento  Fissa un appuntamento

Richiedi informazioni

Clicca su Leggi per aprire l'informativa
* Questi campi sono obbligatori

Calcola il tuo mutuo

Semplice e senza impegno
Anticipo

( % )
Mutuo

( % )

pochi semplici passi

inserisci i tuoi dati
Questionario completato
Grazie per aver richiesto un appuntamento senza impegno con un nostro Consulente del Credito e Assicurativo.

Hai inserito correttamente tutti i dati necessari e a breve riceverai una e-mail con un link da convalidare per inviare i tuoi dati.
Affiliato
Immobiliare Coriano Srl
Via Dei Martiri, 2 47853 Coriano (RN)

Il nostro staff


  • Michelangelo Ballabene
    Collaboratore

  • Valerio Olivieri
    Collaboratore

  • Mauro Meletti
    Affiliato
Via Dei Martiri, 2 47853 Coriano (RN)
Zona: Coriano-Montescudo-Montecolombo-Ospedaletto-Cerasolo-Trarivi-S.Andrea in Besanigo-San Savino
Mostra su mappa
Orari: Dal lunedì al venerdì dalle 9:00 alle 13:00 e dalle 15:00 alle 19:00 il Sabato solo mattina dalle 9:00 alle 13:00
Affiliato
Immobiliare Coriano Srl
Via Dei Martiri, 2 47853 Coriano (RN)

2026 Tecnocasa Franchising S.p.A. - P. IVA 08365160152 - Via Monte Bianco 60/A 20089 Rozzano (MI). Ogni agenzia ha un proprio titolare ed è autonoma. Privacy policy | Policy utilizzo | Cookie policy