Villa a schiera in vendita

Montescudo - Montecolombo, Via le Bance - Montescudo
€ 325.000
4 locali 4 locali
178 Mq 178 Mq
2 bagni 2 bagni

Villa a schiera in vendita

Montescudo - Montecolombo, Via le Bance - Montescudo

Descrizione annuncio

In pieno centro a Montescudo, in una zona tranquilla, riservata e comodissima a tutti i principali servizi, proponiamo in vendita una spaziosa abitazione disposta su più livelli, ideale per famiglie numerose o per chi cerca ampi spazi e indipendenza.

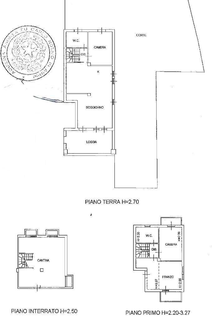
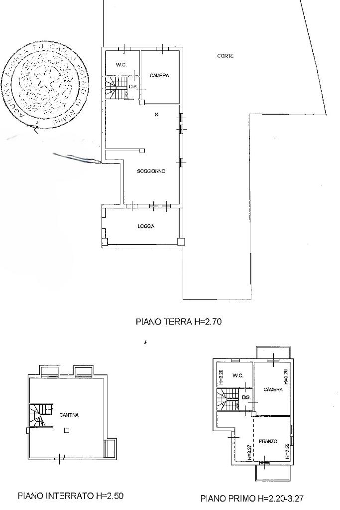
Piano Terra

Box auto

Tavernetta versatile, perfetta per cene, zona relax o hobby

Piano Primo

Accesso principale dell’abitazione da una grande loggia panoramica, ideale per momenti all’aperto.

Luminoso soggiorno

Cucina abitabile

Camera matrimoniale

Bagno

Ampia corte di proprietà, perfetta per vivere gli spazi esterni in totale privacy

Piano Secondo

Due grandi camere matrimoniali

Secondo bagno

Due balconi con vista aperta

Punti di forza

Posizione centrale ma riservata

Panorama unico

Spazi ampi e ben distribuiti

Vicinanza ai servizi essenziali

Un immobile ideale per chi desidera vivere in tranquillità senza rinunciare alla comodità del centro.

Mostra tutto

Nelle vicinanze

Farmacia Farmacia
Farmacia
390 m
Supermercati Supermercati
Supermercati
1,9 Km
Negozi Negozi
Negozi
1,8 Km
Ristoranti Ristoranti
Amici Miei
1,1 Km
Ristoranti
2,0 Km
Caffè Trattoria Terra & Mare
2,9 Km
Mostra tutto

Caratteristiche

Rif.:
61152885
Piano:
1 di 2 (Piano su più livelli)
Box:
2
Posti auto:
2
Balconi:
2
Camere da letto:
3
Mostra tutto
Prezzo Prezzo
€ 325.000
Rata mutuo Rata mutuo
€ 1.518 / mese
Spese annue Spese annue
€ 900
Proponi il tuo prezzoProponi il tuo prezzo

Classe Energetica

B
B
B
B
B
B
B
B
B
EP globale non rinnovabile:
272.81 kW h/m² anno
EP globale rinnovabile:
0.97 kW h/m² anno
EP invernale del fabbricato:
EP estiva del fabbricato:
Anno di costruzione:
2008
Riscaldamento:
Autonomo
Tipo impianto:
A radiatori
Tipo alimentazione:
Metano

Ti interessa visionare l'immobile?

Fissa un appuntamento  Fissa un appuntamento

Richiedi informazioni

Clicca su Leggi per aprire l'informativa
* Questi campi sono obbligatori

Calcola il tuo mutuo

Semplice e senza impegno
Anticipo

( % )
Mutuo

( % )

pochi semplici passi

inserisci i tuoi dati
Questionario completato
Grazie per aver richiesto un appuntamento senza impegno con un nostro Consulente del Credito e Assicurativo.

Hai inserito correttamente tutti i dati necessari e a breve riceverai una e-mail con un link da convalidare per inviare i tuoi dati.
Affiliato
Immobiliare Coriano Srl
Via Dei Martiri, 2 47853 Coriano (RN)

Il nostro staff


  • Michelangelo Ballabene
    Collaboratore

  • Valerio Olivieri
    Collaboratore

  • Mauro Meletti
    Affiliato
Via Dei Martiri, 2 47853 Coriano (RN)
Zona: Coriano-Montescudo-Montecolombo-Ospedaletto-Cerasolo-Trarivi-S.Andrea in Besanigo-San Savino
Mostra su mappa
Orari: Dal lunedì al venerdì dalle 9:00 alle 13:00 e dalle 15:00 alle 19:00 il Sabato solo mattina dalle 9:00 alle 13:00
Affiliato
Immobiliare Coriano Srl
Via Dei Martiri, 2 47853 Coriano (RN)

2026 Tecnocasa Franchising S.p.A. - P. IVA 08365160152 - Via Monte Bianco 60/A 20089 Rozzano (MI). Ogni agenzia ha un proprio titolare ed è autonoma. Privacy policy | Policy utilizzo | Cookie policy