Rustico in vendita

Monte Cerignone, Via San Donato - Valle Magnone
€ 105.000
4 locali 4 locali
284 Mq 284 Mq
1 bagno 1 bagno

Rustico in vendita

Monte Cerignone, Via San Donato - Valle Magnone

Descrizione annuncio

Zona Monte Cerignone

Antica Casa in Pietra del XVII Secolo con Terreno

In posizione panoramica dominante, con splendida vista sul suggestivo borgo di Monte Cerignone, proponiamo in vendita un’affascinante casa rurale in pietra del XVII secolo, completamente da ristrutturare.

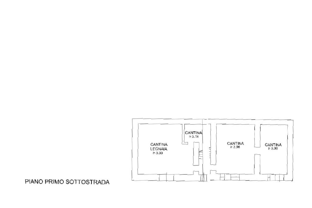
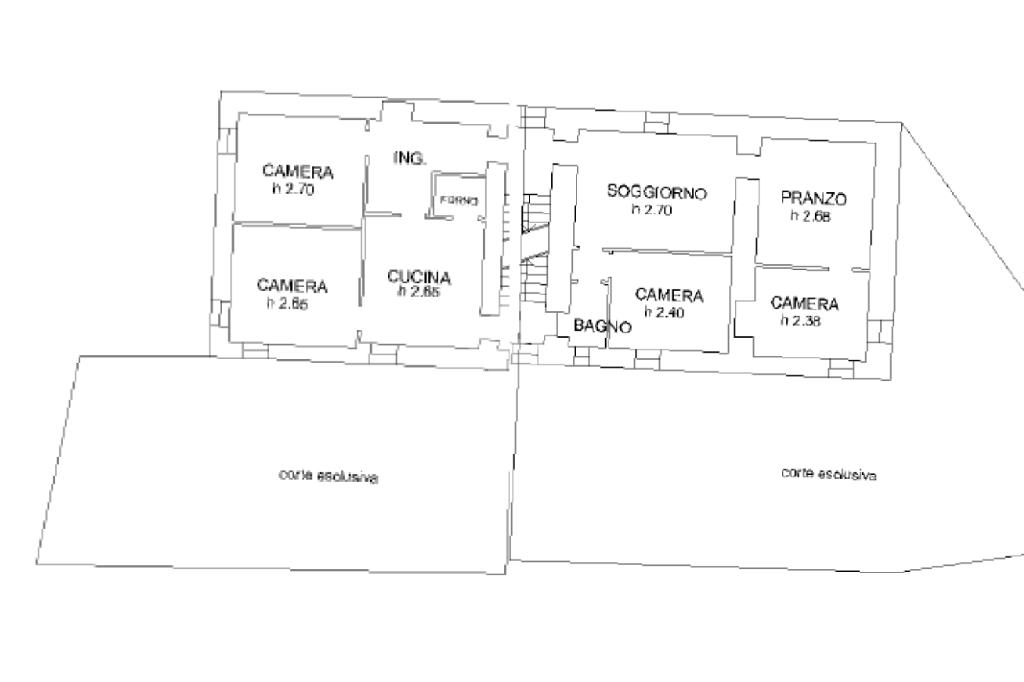
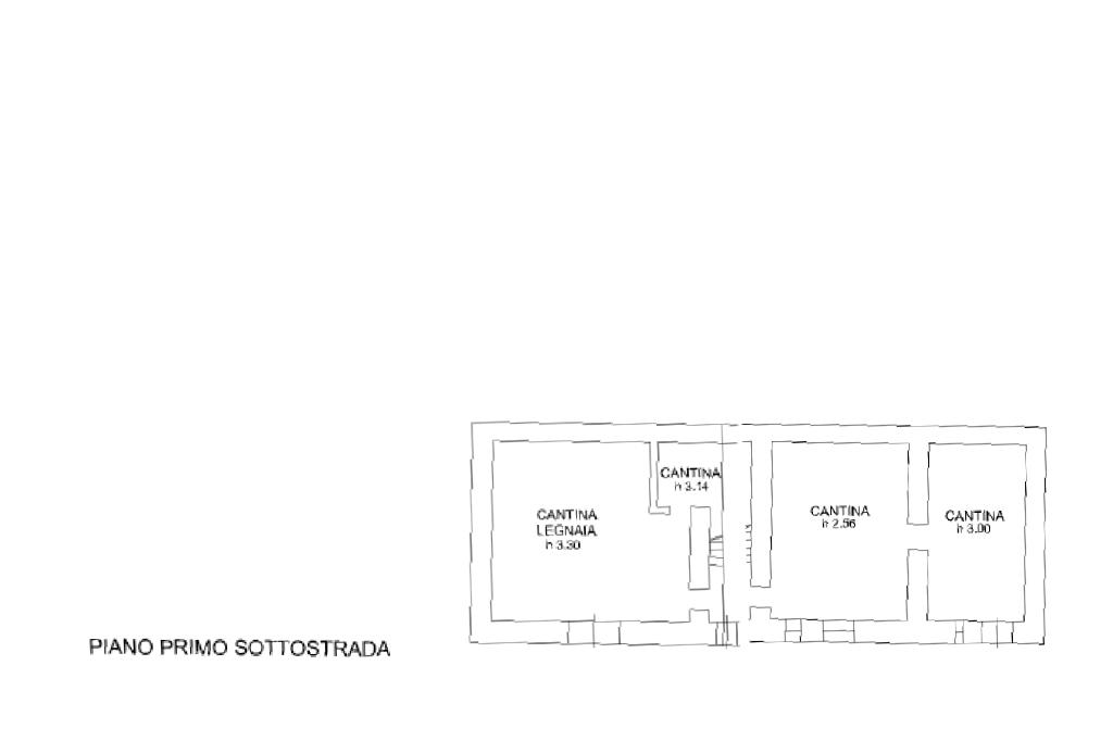
Superficie: 284 mq distribuiti su tre livelli, con possibilità di realizzare due unità abitative indipendenti.
Terreno: 42.000 mq di terreno agricolo circostante, ideale per coltivazioni, allevamento o attività agrituristiche.

La struttura, immersa nel verde e nella tranquillità della campagna marchigiana, rappresenta una straordinaria opportunità di investimento per chi desidera:

- Creare una struttura ricettiva (agriturismo, B&B, country house)

- Avviare un'attività agricola o eno-gastronomica

- Realizzare una residenza privata dal fascino unico

Posizione strategica, a breve distanza da San Marino e Urbino; vista aperta sul borgo medievale di Monte Cerignone; ampi spazi e grande potenziale architettonico.

Contattaci per ricevere ulteriori informazioni o fissare una visita all'immobile!

Mostra tutto

Caratteristiche

Rif.:
61121525
Piano:
Su più livelli di 2
Totale piani:
2
Camere da letto:
4
Arredamento:
Assente
Condizionamento:
Assente
Mostra tutto
Prezzo Prezzo
€ 105.000
Rata mutuo Rata mutuo
€ 498 / mese
Spese annue Spese annue
€ 0
Proponi il tuo prezzoProponi il tuo prezzo

Classe Energetica

G
G
G
G
G
G
G
G
G
EP globale non rinnovabile:
365.78 kW h/m² anno
EP globale rinnovabile:
123.00 kW h/m² anno
EP invernale del fabbricato:
EP estiva del fabbricato:
Anno di costruzione:
1700
Riscaldamento:
Autonomo
Tipo impianto:
A radiatori
Tipo alimentazione:
Metano

Ti interessa visionare l'immobile?

Fissa un appuntamento  Fissa un appuntamento

Richiedi informazioni

Clicca su Leggi per aprire l'informativa
* Questi campi sono obbligatori

Calcola il tuo mutuo

Semplice e senza impegno
Anticipo

( % )
Mutuo

( % )

pochi semplici passi

inserisci i tuoi dati
Questionario completato
Grazie per aver richiesto un appuntamento senza impegno con un nostro Consulente del Credito e Assicurativo.

Hai inserito correttamente tutti i dati necessari e a breve riceverai una e-mail con un link da convalidare per inviare i tuoi dati.
Affiliato
Immobiliare Coriano Srl
Via Dei Martiri, 2 47853 Coriano (RN)

Il nostro staff


  • Michelangelo Ballabene
    Collaboratore

  • Valerio Olivieri
    Collaboratore

  • Mauro Meletti
    Affiliato
Via Dei Martiri, 2 47853 Coriano (RN)
Zona: Coriano-Montescudo-Montecolombo-Ospedaletto-Cerasolo-Trarivi-S.Andrea in Besanigo-San Savino
Mostra su mappa
Orari: Dal lunedì al venerdì dalle 9:00 alle 13:00 e dalle 15:00 alle 19:00 il Sabato solo mattina dalle 9:00 alle 13:00
Affiliato
Immobiliare Coriano Srl
Via Dei Martiri, 2 47853 Coriano (RN)

2026 Tecnocasa Franchising S.p.A. - P. IVA 08365160152 - Via Monte Bianco 60/A 20089 Rozzano (MI). Ogni agenzia ha un proprio titolare ed è autonoma. Privacy policy | Policy utilizzo | Cookie policy