Casa indipendente in vendita

Gemmano, Via Paolo Borsellino
€ 190.000
5 locali 5 locali
400 Mq 400 Mq
3 bagni 3 bagni

Casa indipendente in vendita

Gemmano, Via Paolo Borsellino

Descrizione annuncio

Gemmano – Proponiamo in vendita ampia casa indipendente da ultimare

La proprietà, di circa 400 mq, costruita nel 2007, ultima ristrutturazione ricevuta nel 2014, si sviluppa su più livelli e offre ambienti spaziosi e luminosi, ideali per chi cerca tranquillità e possibilità di personalizzazione.

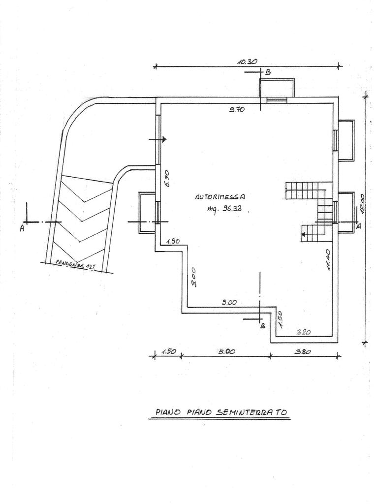
Piano seminterrato:

Autorimessa

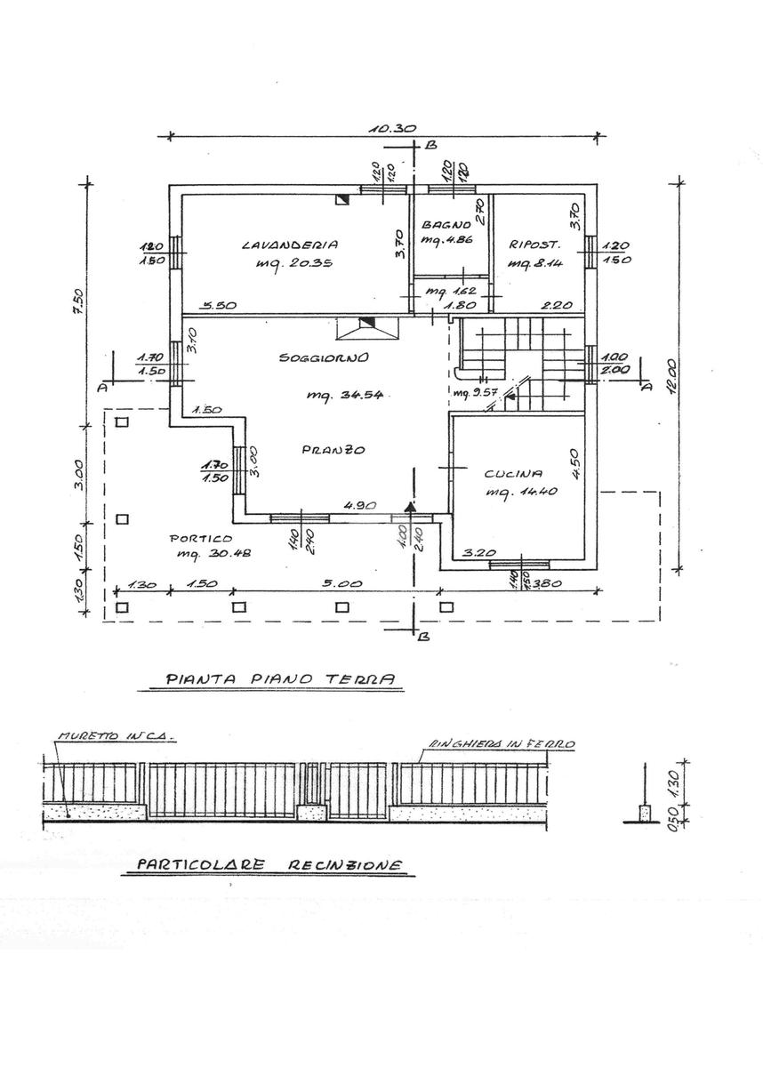
Piano terra:

Cucina

Soggiorno

Lavanderia

Bagno

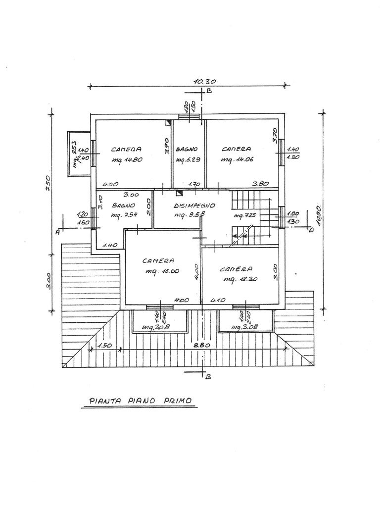
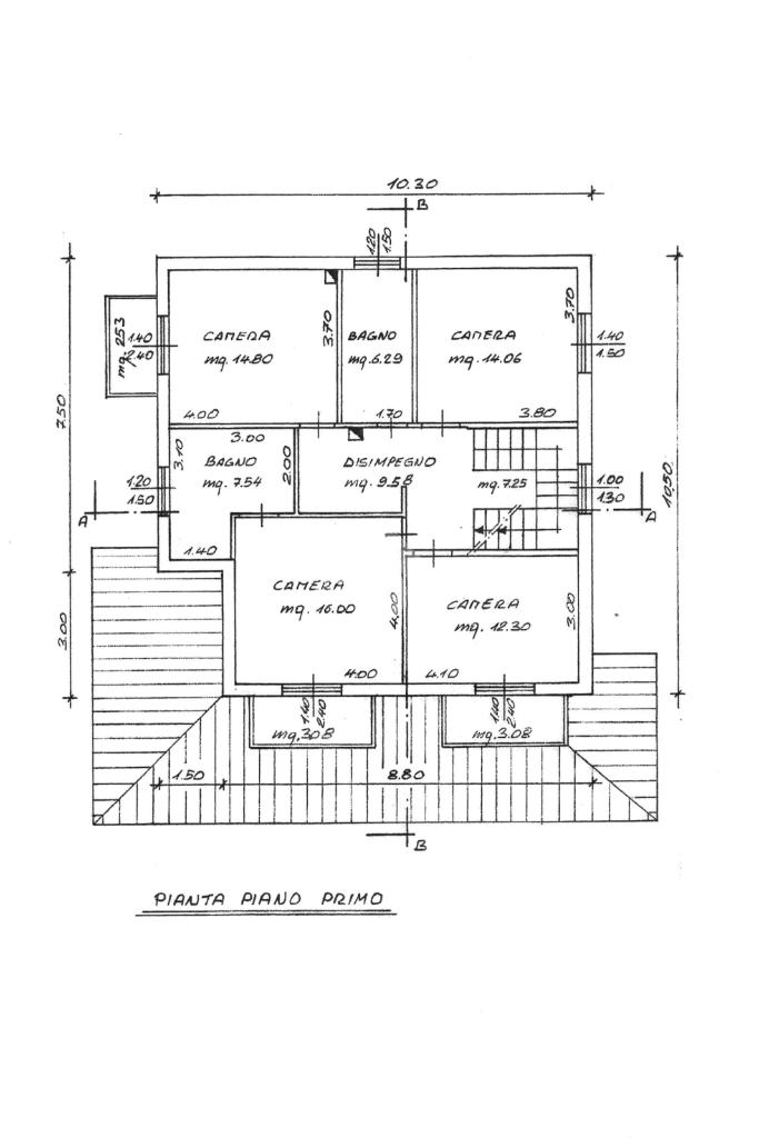
Piano primo:

Quattro camere da letto

Due bagni

Tre balconi con vista panoramica

Piano mansardato:

Mansarda

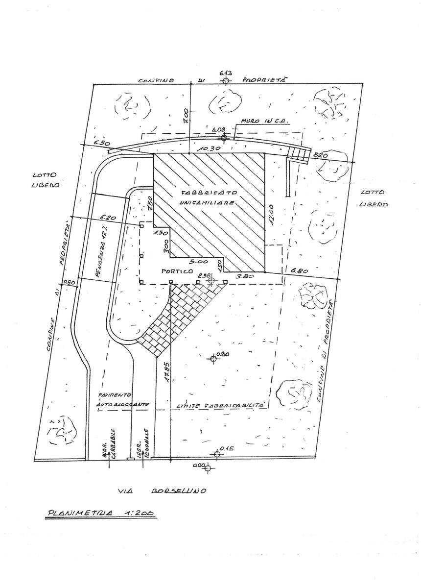
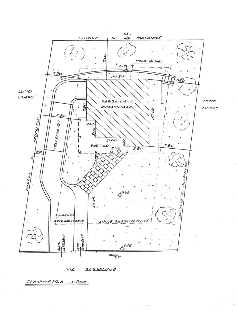
La proprietà è circondata da un giardino recintato, che garantisce privacy e consente di vivere appieno gli spazi esterni.

L’immobile si presenta allo stato grezzo avanzato, offrendo la possibilità di completare e personalizzare gli interni secondo le proprie esigenze.

Una soluzione ideale per chi desidera una casa indipendente, ampia e situata in una zona tranquilla immersa nel verde.

Mostra tutto

Nelle vicinanze

Trasporto pubblico Trasporto pubblico
Linea 180
Linea 180
3,0 Km
Farmacia Farmacia
Dispensario Farmaceutico
3,0 Km
Supermercati Supermercati
La bottega dei mille sapori
50 m
La Bottega del Cavaliere Ormanno
3,0 Km
Alimentari di Rovelli Terenzio
3,0 Km
Bar Bar
Bar
2,2 Km
Caffé del Borgo
3,0 Km
Ristoranti Ristoranti
Ristorante Antica Gemma
220 m
Caffè Trattoria Terra & Mare
1,5 Km
Agriturismo I Muretti
2,3 Km
Amici Miei
2,7 Km
Baita "La Tiperia"
2,9 Km
Mostra tutto

Caratteristiche

Rif.:
61146985
Piano:
Terra con giardino di 4
Totale piani:
4
Box:
1
Balconi:
3
Camere da letto:
4
Mostra tutto
Prezzo Prezzo
€ 190.000
Rata mutuo Rata mutuo
€ 902 / mese
Spese annue Spese annue
€ 0
Proponi il tuo prezzoProponi il tuo prezzo

Classe Energetica

G
G
G
G
G
G
G
G
G
EP globale non rinnovabile:
129.80 kW h/m² anno
EP globale rinnovabile:
190.60 kW h/m² anno
EP invernale del fabbricato:
EP estiva del fabbricato:
Anno di costruzione:
2007
Riscaldamento:
Autonomo
Tipo impianto:
A pavimento
Tipo alimentazione:
Metano

Ti interessa visionare l'immobile?

Fissa un appuntamento  Fissa un appuntamento

Richiedi informazioni

Clicca su Leggi per aprire l'informativa
* Questi campi sono obbligatori

Calcola il tuo mutuo

Semplice e senza impegno
Anticipo

( % )
Mutuo

( % )

pochi semplici passi

inserisci i tuoi dati
Questionario completato
Grazie per aver richiesto un appuntamento senza impegno con un nostro Consulente del Credito e Assicurativo.

Hai inserito correttamente tutti i dati necessari e a breve riceverai una e-mail con un link da convalidare per inviare i tuoi dati.
Affiliato
Immobiliare Coriano Srl
Via Dei Martiri, 2 47853 Coriano (RN)

Il nostro staff


  • Michelangelo Ballabene
    Collaboratore

  • Valerio Olivieri
    Collaboratore

  • Mauro Meletti
    Affiliato
Via Dei Martiri, 2 47853 Coriano (RN)
Zona: Coriano-Montescudo-Montecolombo-Ospedaletto-Cerasolo-Trarivi-S.Andrea in Besanigo-San Savino
Mostra su mappa
Orari: Dal lunedì al venerdì dalle 9:00 alle 13:00 e dalle 15:00 alle 19:00 il Sabato solo mattina dalle 9:00 alle 13:00
Affiliato
Immobiliare Coriano Srl
Via Dei Martiri, 2 47853 Coriano (RN)

2026 Tecnocasa Franchising S.p.A. - P. IVA 08365160152 - Via Monte Bianco 60/A 20089 Rozzano (MI). Ogni agenzia ha un proprio titolare ed è autonoma. Privacy policy | Policy utilizzo | Cookie policy