Villa singola in vendita

Coriano, Via il Giardino
€ 630.000
Prezzo aggiornato
6 locali 6 locali
350 Mq 350 Mq
2 bagni 2 bagni

Villa singola in vendita

Coriano, Via il Giardino

Descrizione annuncio

Zona Coriano.

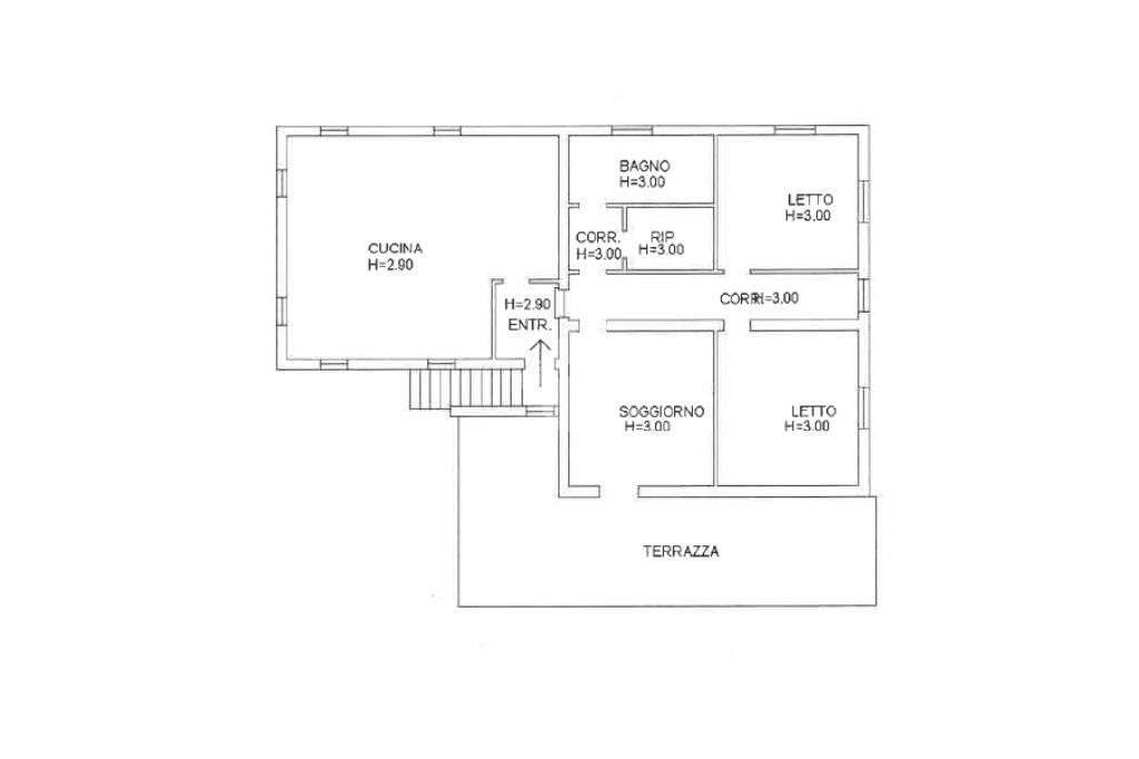
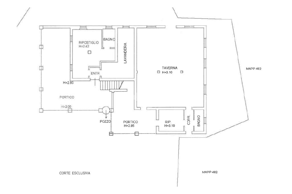
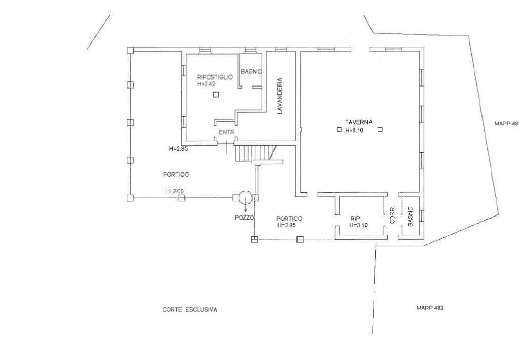
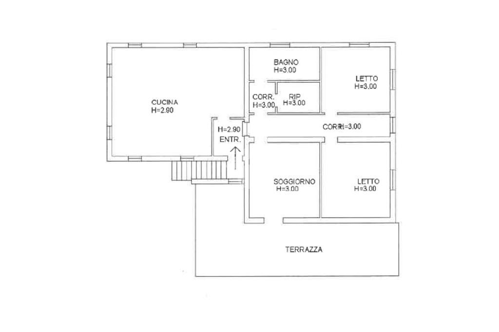
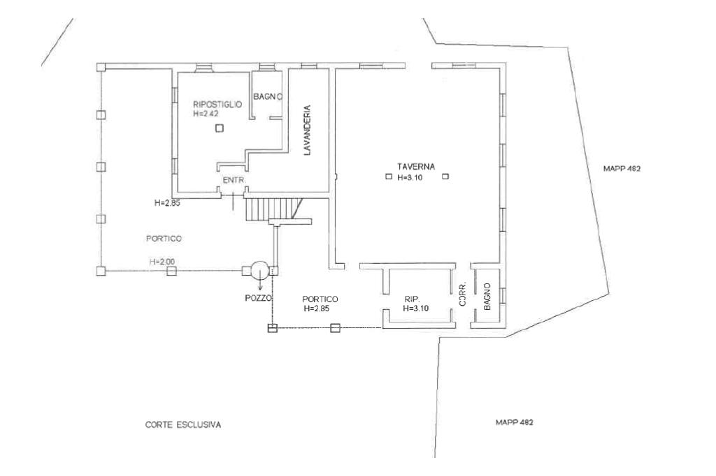
Proponiamo villa singola con ristrutturazione tipologica che si estende su una superficie di 350 mq, distribuita su due livelli.

La casa è stata ristrutturata negli anni 90: da un vecchio casolare, mantenendo la sua tipicità.

Al piano terra troviamo un ampio ripostiglio, due bagni e una grande taverna, che rappresenta una soluzione versatile per accogliere ospiti o familiari.

Al primo piano, la villa comprende tre camere da letto, un ampio bagno con vasca, la sala da pranzo con angolo cottura e l'ampio terrazzo panoramico.

Completa la proprietà il giardino di circa 6.000 metri quadrati, che offre un'oasi di tranquillità e privacy.

La casa è situata in posizione panoramica, a pochi chilometri da Rimini e Riccione, a pochi passi dai principali servizi della zona.

Mostra tutto

Nelle vicinanze

Scuole Scuole
Arcbaleno
800 m
Scuole
990 m
Supermercati Supermercati
Conad
1,0 Km
Despar
2,9 Km
Negozi Negozi
Supermercato Vivo
1,3 Km
Ristoranti Ristoranti
Bella vista
960 m
La Greppia
1,6 Km
Mostra tutto

Caratteristiche

Rif.:
61138385
Piano:
Su più livelli di 2
Totale piani:
2
Terrazzi:
1
Camere da letto:
3
Arredamento:
Parziale
Mostra tutto
Prezzo Prezzo
€ 630.000
Rata mutuo Rata mutuo
€ 2.942 / mese
Spese annue Spese annue
€ 0
Proponi il tuo prezzoProponi il tuo prezzo

Classe Energetica

G
G
G
G
G
G
G
G
G
EP globale non rinnovabile:
332.00 kW h/m² anno
EP globale rinnovabile:
332.00 kW h/m² anno
EP invernale del fabbricato:
EP estiva del fabbricato:
Anno di costruzione:
1940
Riscaldamento:
Autonomo
Tipo impianto:
A radiatori
Tipo alimentazione:
Metano

Prezzo ridotto di €1 (6%%)

Ti interessa visionare l'immobile?

Fissa un appuntamento  Fissa un appuntamento

Richiedi informazioni

Clicca su Leggi per aprire l'informativa
* Questi campi sono obbligatori

Calcola il tuo mutuo

Semplice e senza impegno
Anticipo

( % )
Mutuo

( % )

pochi semplici passi

inserisci i tuoi dati
Questionario completato
Grazie per aver richiesto un appuntamento senza impegno con un nostro Consulente del Credito e Assicurativo.

Hai inserito correttamente tutti i dati necessari e a breve riceverai una e-mail con un link da convalidare per inviare i tuoi dati.
Affiliato
Immobiliare Coriano Srl
Via Dei Martiri, 2 47853 Coriano (RN)

Il nostro staff


  • Michelangelo Ballabene
    Collaboratore

  • Valerio Olivieri
    Collaboratore

  • Mauro Meletti
    Affiliato
Via Dei Martiri, 2 47853 Coriano (RN)
Zona: Coriano-Montescudo-Montecolombo-Ospedaletto-Cerasolo-Trarivi-S.Andrea in Besanigo-San Savino
Mostra su mappa
Orari: Dal lunedì al venerdì dalle 9:00 alle 13:00 e dalle 15:00 alle 19:00 il Sabato solo mattina dalle 9:00 alle 13:00
Affiliato
Immobiliare Coriano Srl
Via Dei Martiri, 2 47853 Coriano (RN)

2026 Tecnocasa Franchising S.p.A. - P. IVA 08365160152 - Via Monte Bianco 60/A 20089 Rozzano (MI). Ogni agenzia ha un proprio titolare ed è autonoma. Privacy policy | Policy utilizzo | Cookie policy