Quadrilocale in vendita

Coriano, Via I° Maggio - Cerasolo
€ 200.000
4 locali 4 locali
110 Mq 110 Mq
2 bagni 2 bagni

Quadrilocale in vendita

Coriano, Via I° Maggio - Cerasolo

Descrizione annuncio

Nel comune di Coriano, nella tranquilla località di Cerasolo.

Proponiamo un quadrilocale al grezzo avanzato, pronto per essere personalizzato secondo i propri gusti.

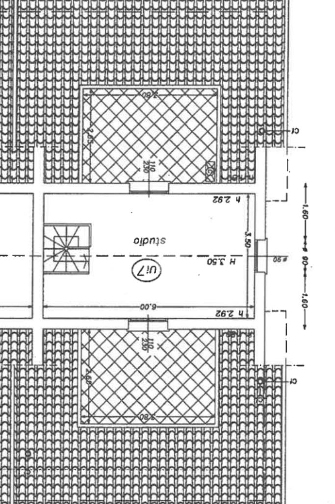
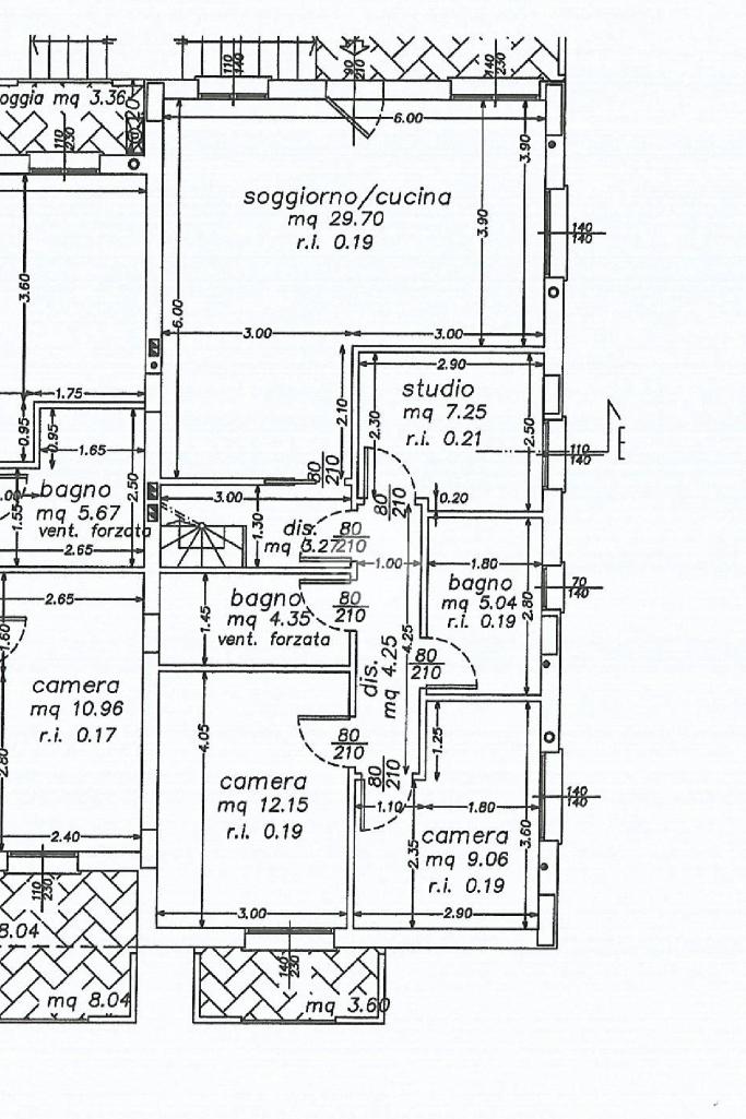
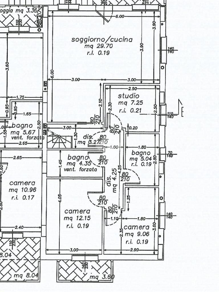
Situato al primo piano di un edificio civile costruito nel 2009, l'immobile si estende su una superficie di 115 mq.

L'appartamento è composto da un ampio soggiorno, due camere da letto, studio e due bagni, offrendo spazi ben distribuiti e funzionali.

Al piano sottotetto, si trova un'ulteriore camera da letto di grande dimensine.

I terrazzi completano la proprietà, offrendo spazi esterni per momenti di relax. L'immobile rappresenta un'opportunità per chi desidera una casa da personalizzare in una zona tranquilla e ben collegata.

Conclude la soluzione un ampio box.

la zona in cui è situato l'immobile è vicina ai principali servizzi della zona e a pochi chilometri da San Marino e Rimini

Mostra tutto

Nelle vicinanze

Trasporto pubblico Trasporto pubblico
Mercatone
Mercatone
1,6 Km
Trasporto pubblico
2,2 Km
Scuole Scuole
Scuola Infanzia Falciano
2,7 Km
Scuola Elementare di Falciano "L'Olivo"
2,7 Km
Farmacia Farmacia
Comunale Corasolo
1,1 Km
Supermercati Supermercati
Despar
2,9 Km
Bar Bar
Bar
1,1 Km
Ristoranti Ristoranti
Ristorante Vite
790 m
Plaza Cafè
2,6 Km
Baldoria Brewpub
2,7 Km
Mostra tutto

Caratteristiche

Rif.:
61197559
Piano:
2 di 2
Box:
1
Balconi:
2
Terrazzi:
2
Camere da letto:
3
Mostra tutto
Prezzo Prezzo
€ 200.000
Prezzo box Prezzo box
€ 48.000
Rata mutuo Rata mutuo
€ 949 / mese
Spese annue Spese annue
€ 700
Proponi il tuo prezzoProponi il tuo prezzo

Classe Energetica

G
G
G
G
G
G
G
G
G
EP globale non rinnovabile:
125.00 kW h/m² anno
EP globale rinnovabile:
280.00 kW h/m² anno
EP invernale del fabbricato:
EP estiva del fabbricato:
Anno di costruzione:
2009
Riscaldamento:
Autonomo
Tipo impianto:
A radiatori
Tipo alimentazione:
Metano

Ti interessa visionare l'immobile?

Fissa un appuntamento  Fissa un appuntamento

Richiedi informazioni

Clicca su Leggi per aprire l'informativa
* Questi campi sono obbligatori

Calcola il tuo mutuo

Semplice e senza impegno
Anticipo

( % )
Mutuo

( % )

pochi semplici passi

inserisci i tuoi dati
Questionario completato
Grazie per aver richiesto un appuntamento senza impegno con un nostro Consulente del Credito e Assicurativo.

Hai inserito correttamente tutti i dati necessari e a breve riceverai una e-mail con un link da convalidare per inviare i tuoi dati.
Affiliato
Immobiliare Coriano Srl
Via Dei Martiri, 2 47853 Coriano (RN)

Il nostro staff


  • Michelangelo Ballabene
    Collaboratore

  • Valerio Olivieri
    Collaboratore

  • Mauro Meletti
    Affiliato
Via Dei Martiri, 2 47853 Coriano (RN)
Zona: Coriano-Montescudo-Montecolombo-Ospedaletto-Cerasolo-Trarivi-S.Andrea in Besanigo-San Savino
Mostra su mappa
Orari: Dal lunedì al venerdì dalle 9:00 alle 13:00 e dalle 15:00 alle 19:00 il Sabato solo mattina dalle 9:00 alle 13:00
Affiliato
Immobiliare Coriano Srl
Via Dei Martiri, 2 47853 Coriano (RN)

2026 Tecnocasa Franchising S.p.A. - P. IVA 08365160152 - Via Monte Bianco 60/A 20089 Rozzano (MI). Ogni agenzia ha un proprio titolare ed è autonoma. Privacy policy | Policy utilizzo | Cookie policy